Codice V634GZ - PORZIONE DI CASA CON GIARDINO A CENEDA
    Porzione di casa in Vendita nel Centro Storico di Ceneda a Vittorio Veneto.

    Scopri questa porzione di casa al grezzo, situata nel cuore di Ceneda, un angolo affascinante di Vittorio Veneto. Con una superficie commerciale di circa 170 m² - muri compresi - distribuiti su tre livelli, questa proprietà offre un potenziale unico per chi desidera personalizzare la propria casa. Il piano terra di circa 65 mq è progettato per comprende un'accogliente entrata, una cucina spaziosa, un soggiorno luminoso e un bagno lavanderia, con possibilità di modifiche per adattarsi alle tue esigenze.

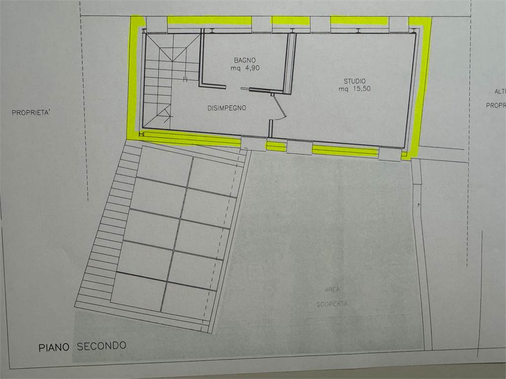
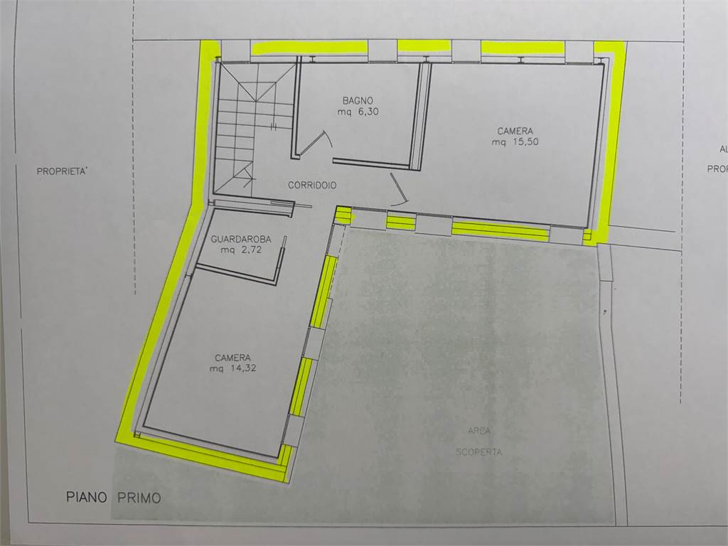
    Salendo al primo piano, troverai due ampie camere da letto, un bagno e un pratico guardaroba. Il secondo piano mansardato, di circa 40 mq, ospita un'ulteriore camera matrimoniale e un bagno, perfetto per gli ospiti o come spazio privato. La casa si affaccia su un giardino di circa 350 mq, un vero e proprio angolo di tranquillità nel centro storico.

    La ristrutturazione è realizzata con certificazione antisismica in bioedilizia, garantendo sicurezza e sostenibilità. La richiesta è di € 180.000 allo stato attuale dei lavori: "AL GREZZO", offrendo così l'opportunità di completare gli interni secondo i propri gusti. Nonostante la mancanza di garage, c'è un comodo parcheggio nelle vicinanze facilmente accessibile. Questa è un'ottima soluzione per chi cerca una casa indipendente con giardino in una posizione centrale da ultimare secondo le proprie preferenze.
    • Prezzo
      180.000 EUR
    • Classe
      NA
    • Locali
      8
    • Metri quadri
      170
    • Mq Giardino
      350
    • Stato Immobile
      In Costruzione
    • Posizione
      Centro Storico
    • Panorama
      Vista Aperta
    • Orientamento
      Nord Est Sud
    • Giardino
      Privato
    • Via San Tiziano , Vittorio Veneto (TV)

    Richiedi informazioni

    • Autorizzo il trattamento dei miei dati personali in base Regolamento UE n. 679/2016
    • Invia