Codice PS116PM - Susegana
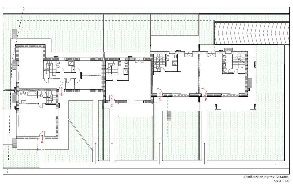
    Ponte della Priula proponiamo case a schiera di nuova realizzazione in classe A4 con garage doppio e cantina nel interrato, soggiorno con cucina a vista, bagno al piano terra, tre camere e bagno al piano primo, giardino di proprietà, ingresso indipendente, alta tecnologia a risparmio energetico.
    • Prezzo
      305.000 EUR
    • Classe
      A4
    • Locali
      6
    • Metri quadri
      173
    • Stato Immobile
      In Costruzione
    • Riscaldamento
      Autonomo
    • Tipo Riscaldam.
      Pompa di Calore
    • Infissi
      Legno Doppio Vetro
    • via pascoli 100, Susegana (TV)

    Richiedi informazioni

    • Autorizzo il trattamento dei miei dati personali in base Regolamento UE n. 679/2016
    • Invia