Codice V356PZ - Casa singola In In Vendita A San Fior
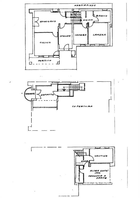
    San Fior - Proponiamo graziosa villetta singola poco distante dal centro e comoda ai servizi. L'immobile si trova in ottime condizioni di manutenzione ed è così composto: ingresso in soggiorno, cucina abitabile separata, stanza multiuso; al piano 1° troviamo una camera matrimoniale, una cameretta, un bagno. Salendo troviamo una stanza mansardata con terrazzo, attualmente al grezzo con impianti predisposti. Al piano seminterrato vi è il garage, la lavanderia e una cantina. Area scoperta di 360 mq.
    • Prezzo
      290.000 EUR / trat.
    • Classe
      E (220,64)
    • Locali
      5
    • Metri quadri
      116
    • Mq Box
      20
    • Mq Giardino
      360
    • mq Terrazzo
      4
    • Stato Immobile
      Buono
    • Grado
      Signorile
    • Orientamento
      Sud Ovest
    • Lati Liberi
      4
    • Giardino
      Privato
    • Arredi
      Possibilità
    • Tipo Soggiorno
      Soggiorno
    • Tipo Cucina
      Abitabile
    • Riscaldamento
      Autonomo
    • Tipo Riscaldam.
      Caldaia
    • Tipo Impianto
      Radiatori
    • Fonte Energetica
      Metano
    • Acqua Calda
      Autonoma
    • Raffrescamento
      Split
    • Infissi
      Legno Doppio Vetro
    • Serramenti
      Discreto
    • Persiana
      Oscurante Legno
    • Pavim. Giorno
      Ceramica
    • Pavim. Notte
      Parquet
    • Pavim. Cucina
      Ceramica
    • Pavim. Bagno
      Ceramica
    • Cantina - Solaio
      Cantina
    • Accesso Disabili
      No

    Richiedi informazioni

    • Autorizzo il trattamento dei miei dati personali in base Regolamento UE n. 679/2016
    • Invia